Гостиницу с подземной парковкой и ТВК построят возле Карповской церкви

Строительство 10 объектов запланировано рядом с Карповской церковью в Ленинском районе Нижнего Новгорода.

Сейчас проходят общественные обсуждения.

Строительство 10 объектов запланировано рядом с Карповской церковью в Ленинском районе Нижнего Новгорода. Документация по внесению изменений в проект планировки и межевания территории размещена на сайте городской мэрии.

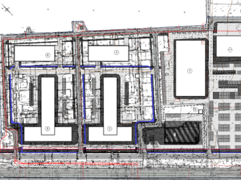
Согласно представленным материалам, застройка участка общей площадью в 9,93 га будет проводиться в границах улиц Героя Попова, Новикова-Прибоя и Грекова. Проект подготовила ГПК «Интраград» по заказу застройщика ООО «Карповский».

Так, на указанной территории появятся торгово-выставочный комплекс, гипермаркет, два офисных здания, три трансформаторных подстанции и гостиница с подземной парковкой, рассчитанной на 20 автомобилей. Кроме того, здесь разместят еще два гаража-стоянки на 300 машино-мест.

Отмечается, что здание гостиницы будет реконструировано из ранее незавершенного объекта строительства. Высота всех проектируемых построек не превысит 5 этажей.

Работы будут проходить в четыре очереди. На участках также осуществят прокладку инженерных коммуникаций, строительство дорог и благоустройство прилегающей территории.

В настоящее время по изменениям в проект проходят общественные обсуждения. Они продлятся до 13 февраля.

Ранее сообщалось, что в деревне Кузнечиха в Советском районе Нижнего Новгорода планируют построить два корпуса гостиницы. Здание расположат рядом с технопарком «Анкудиновка».

Фото: ООО ГПК «Интраград»

Последние новости

Где найти запчасти для сервоприводов и стоит ли использовать аналоги?

Ремонт или замена? Оригинал или аналог? Как выбрать путь, который не навредит вашей автоматике

«Войдет в историю». Нижегородский губернатор — об увольнении тренера «Торпедо»

Нижегородский губернатор: «Ларионов войдет в историю ХК „Торпедо“» Губернатор Нижегородской области Глеб Никитин считает, что Игорь Ларионов, уже бывший главный тренер ХК «Торпедо», войдет в историю клуба.

«Секс не будет прежним». Как нижегородкам восстановить либидо после родов

Гинеколог Кондюров посоветовал нижегородкам не затягивать с сексом после родов Только что родившим нижегородкам посоветовали не отказываться от половой жизни больше, чем на полгода после родов.

Куда пойти с детьми в Уфе: 10 весёлых мест на выходные

Идеи для семейного отдыха в столице Башкортостана — от активных игр до познавательных музеев

На этом сайте представлены актуальные варианты, чтобы снять квартиру в Череповце на выгодных условиях

Комментарии (0)

Добавить комментарий

Ваш email не публикуется. Обязательные поля отмечены *